Global Partners Program
Creating and maintaining successful business relationships throughout the world






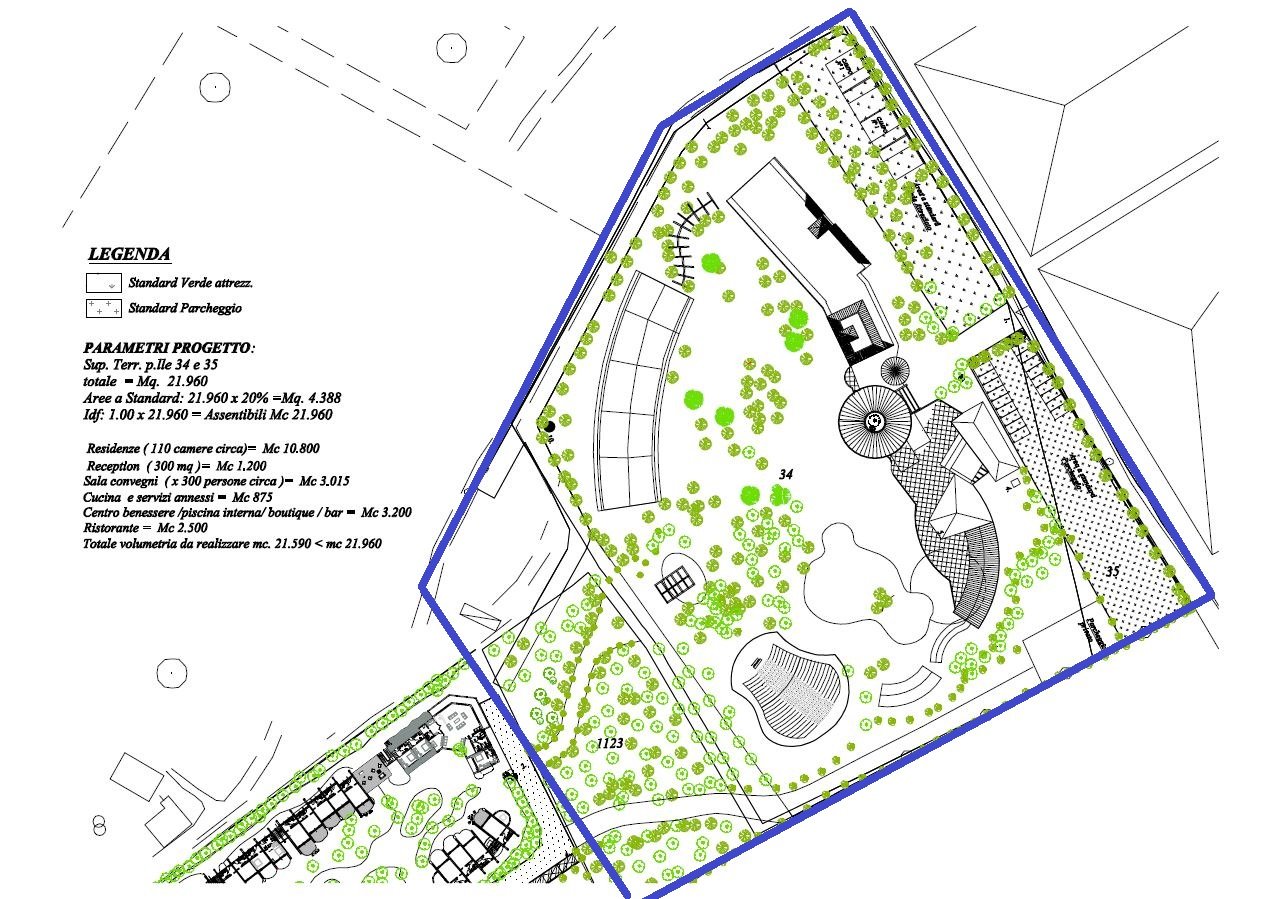
Identified in the Land Registry on Sheet no. 6 parcels 34, 35, for a total of 21,960 square meters falling within Z.T.O. E1 (Agricultural Ambiyo – Tree-lined plain) of the current PRG.
In order to make an inquiry please send an email to info@windrushalliance.com.
Make an enquiry to to book your tailored trip | +44 203 411 8590
Cant wait! Call for immediate assistance.
Creating and maintaining successful business relationships throughout the world
A World of property at your finger tips.
So how do we get there.